35 Excelsior Road, GYMPIE QLD 4570

  • Land Area 508m2
  • Floor Area 185m2
Medical/Consulting
Under Offer
Contact Agent

Location and Convenience

Prime Medical/Consulting/Office Space

Medical/Consulting Sold - GYMPIE QLD

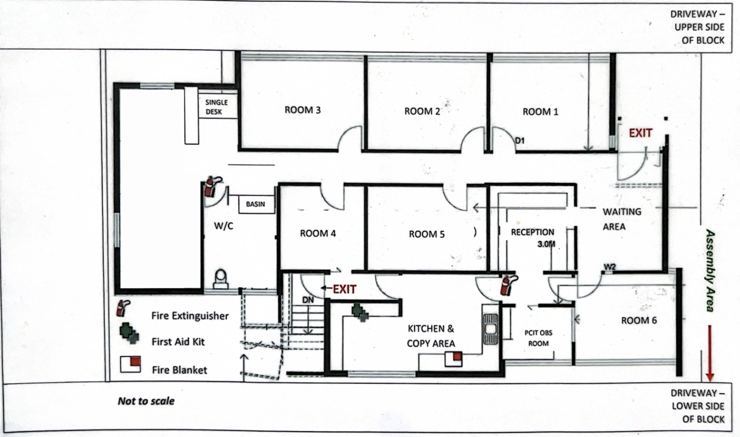
NAI Harcourts is pleased to present 35 Excelsior Road, a well-appointed medical, consulting, or office space in a highly accessible Gympie location. Positioned next to the Old Bruce Highway and Central Shopping Centre, this property offers excellent exposure and convenience for both clients and staff.

Key Features:
• 185sqm of internal space*, ideal for medical, allied health, or professional offices
• Five private consulting rooms, each fitted with a wash basin and lockable cabinetry
• Dedicated meeting area and utility room
• Kitchenette amenities
• Private parking on-site
• Excellent location, with high visibility and proximity to major roads and amenities

This versatile space is ready to accommodate a range of businesses looking for a professional and functional environment. Don’t miss this opportunity-contact exclusive marketing agents Takara Van Wyk and Nathan O’Neill today.

Home Loans

See how much you can borrow with our Borrowing Power Calculator.

Need to sell before investing

Enter your address to get a free Property Appraisal, featuring market value insights, recent sales, rental history, suburb trends, and more—everything you need to make informed property decisions!

Similar Properties

View all

$425,000

150-152 Mary Steet, GYMPIE QLD 4570
  • 430m2
Takara Van Wyk Takara Van Wyk

SOLD PRIOR TO AUCTION

1/50 Anderson Street, FORTITUDE VALLEY QLD 4006
  • 205m2
Jason Luckhardt Jason Luckhardt

Expressions of Interest

27 Excelsior Road, GYMPIE QLD 4570
  • 2139m2
Takara Van Wyk Takara Van Wyk

"*" indicates required fields

Rental Appraisal

Preferred contact Method*

This site is protected by reCAPTCHA and the Google Privacy Policy and Terms of Service apply.