22 Paterson Road, YATALA QLD 4207

  • 6
  • 3
  • 6
  • 6284m2
Acreage Semi-rural
Sold
Another One UNDER CONTRACT by Team Johnston White!

Location and Convenience

Rustic Charm Meets Industrial Elegance: Your Dream Home Awaits at 22 Paterson Road, Yatala

Acreage Semi-rural Sold - YATALA QLD

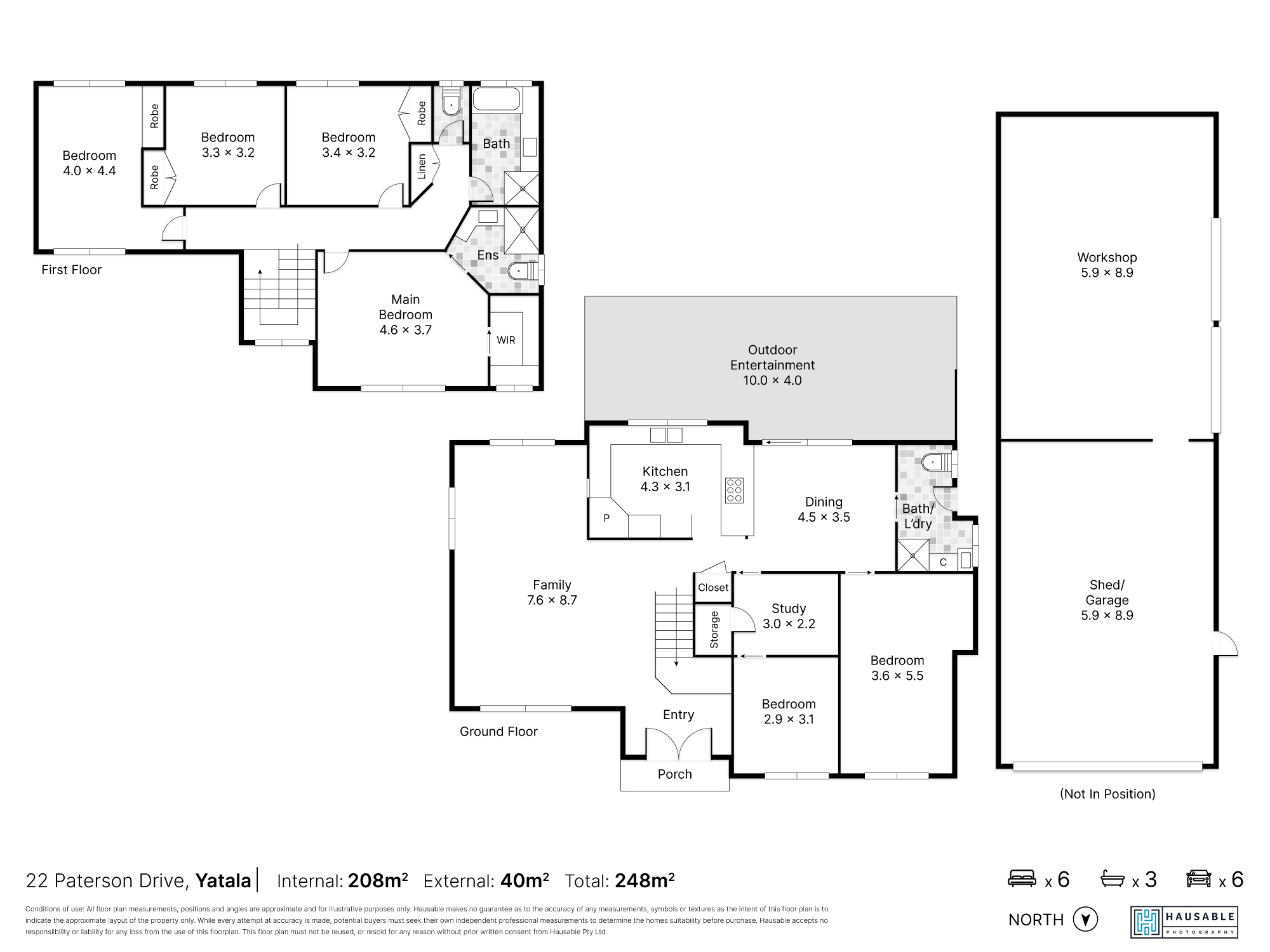
This Castle on the Hill, spread over 1.5 acres, perfectly marries rustic charm with modern industrial flair, creating an inviting and unique atmosphere that is sure to enchant.

The home boasts six generously sized bedrooms, each featuring built-in robes, ceiling fans, and air conditioning, ensuring comfort and convenience for the entire family. With three spacious bathrooms, a large open-plan living area, and a home office/study, this property provides ample space for both relaxation and productivity. The heart of the home is the dream kitchen, designed with both functionality and style in mind, perfect for the home chef and entertaining guests.

Outdoor living is a dream at 22 Paterson Road. The expansive alfresco area, complete with an outdoor fireplace, overlooks a sparkling pool, creating the perfect setting for year-round entertaining and relaxation. The property also includes a large paddock, fully fenced for safety, and an impressive 18m x 6m shed, offering abundant storage and workspace options. Additional features of this outstanding property include a fully fenced house yard and an electric powered front gate, providing added privacy and security.

Features you’ll love:
– 6 x large bedrooms (4 rooms with BIR, 1 bedroom has built in study area, A/C, and ceiling fans in all rooms, master with WIR and ensuite)
– 3 x bathrooms (main bathroom upstairs with separate bathtub and shower, and separate W/C)
– Unique industrial style kitchen (with concrete bench tops, huge 5 burner Kleenmaid gas cooktop / electric oven, dishwasher, large pantry, sleek cabinetry, and ample bench and cupboard space)
– Large open planned living area
– Open planned kitchen and dining
– Study area
– 7 x split system air conditioners throughout
– Industrial pendant lighting throughout
– Concrete flooring
– Exposed timber beams and brickwork throughout
– Loads of floor – ceiling fans throughout
– Ceiling fans throughout
– Grand entrance with timber double doors
– Barn doors throughout
– Large alfresco area overlooking the pool with built in bar and outdoor fireplace
– Inground swimming pool
– Large shed (18m x 6m with additional covered storage space off the left-hand side)
– Fully fenced yard for children and pets
– Low maintenance Astro-turfed back yard
– Fully fenced paddock out the back
– 2 x bird aviaries
– Fully fenced
– Electric front gate
– 1988 build
– 6284m2
– 198m2 internally
– Brick veneer, Oregon timber frame, tiled roof
– Rates approx. $900 per quarter

Situated conveniently near the M1 motorway, commuting is a breeze from this ideal family location. Local schools such as Rivermont College, Trinity College, and Windaroo Valley State High School are just a short drive away, ensuring excellent educational options for your children. In addition, amenities like the Yatala Brewery and the Yatala Drive-In Movies offer unique entertainment and leisure activities for the whole family. Yatala’s strategic position near major transport routes enhances its appeal for both businesses and residents, combining ease of access with a vibrant community atmosphere.

Don’t miss the chance to own this exceptional property! Join us at one of our many open homes to experience its unique charm and appeal first hand. Be sure to submit your offer early or attend the auction to secure your dream home.

Disclaimer:
In preparing this advertisement, we have endeavoured to ensure the information contained is true and accurate. We accept no responsibility and disclaim all liability in respect of any errors, omissions, inaccuracies, or misstatements contained. Prospective purchasers should make their own enquiries to verify the information contained in this advertisement.

Property Features

General:

  • Built In Robes
  • Secure Parking
  • Study
  • Workshop

Exterior/Outdoor:

  • Outdoor Entertaining
  • Shed

Home Loans

See how much you can borrow with our Borrowing Power Calculator.

Need to sell before you buy?

Enter your address to get a free Property Appraisal, featuring market value insights, recent sales, rental history, suburb trends, and more—everything you need to make informed property decisions!

Similar Properties

View all

Another One UNDER CONTRACT by Team Johnston!

26-28 Enkleman Road, YATALA QLD 4207
  • 4
  • 2
  • 6499m2
Acreage Semi-rural
Brad Johnston Brad Johnston

"*" indicates required fields

Rental Appraisal

Preferred contact Method*

This site is protected by reCAPTCHA and the Google Privacy Policy and Terms of Service apply.